Move in now!
Here is your opportunity to acquire a brand new property to suit your family in the most sought-after suburbs in the Waikato. Within walking or cycling distance to your favourite cafes, and a quick trip to Hamilton with superb connections to the very nearly complete Waikato Expressway.
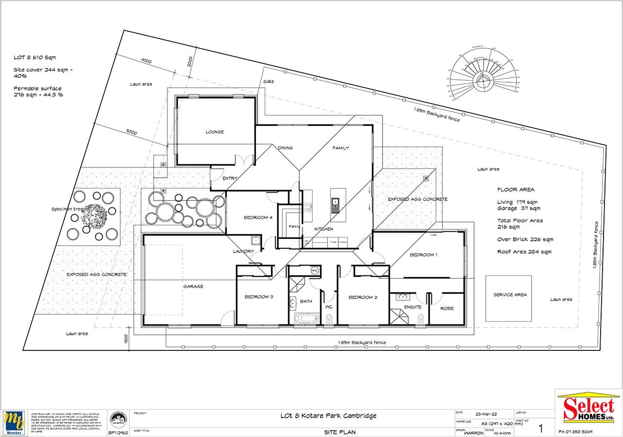
This stylish 226 sqm home is a perfect blend of convenient contemporary living. A well-considered home that has everything a growing family needs. The generous floorplan offers easy and comfortable living. The heart of the home is the open plan kitchen, dining and family room, that opens into the separate living room. Just perfect for extended family living and entertaining.
There are four spacious bedrooms, three are serviced by a family bathroom and separate toilet. The master bedroom suite (complete with a walk-in wardrobe and well-appointed en-suite) is located at the far end of the home, providing an expansive adult retreat that opens to the outdoor area.. Modern living is well catered for with great storage throughout and internal access to a double garage. Air conditioning provides ambient temperatures throughout the home.
The covered area along the northern face of the home, provides much needed shade in the hot summer months, yet lets the home soak up the winter warmth. The siting of the home, on the 610 sqm section, has been well considered to maximise the northern aspect, with privacy and low maintenance gardens.
The external cladding (brick with 200 wide vertical Linea Oblique) combined with double glazing provide excellent thermal and sound insulation, all with a 10 year Masterbuild Guarantee. This house and land package is waiting to be yours!
Arrange to come in and see us at our show home and office by getting in touch with Tom today.
Ph – 027 498 1352
Email – [email protected]
Office – 24 The Boulevard, Te Rapa, Hamilton
This was my first home and my first build and naturally, I was nervous. I understand there are delays during this climate; people just want their homes done, and inflation has thrown a spanner in. This can be an incredibly stressful experience and considering the building industry strains, I had a wonderful experience. Select Homes identified all the needed requirements for the build without raising the initial quoted price. This honestly was a great experience.
We build throughout the Waikato area including Hamilton, Cambridge, Morrinsville, Matamata, Te Awamutu and Te Kauwhata.