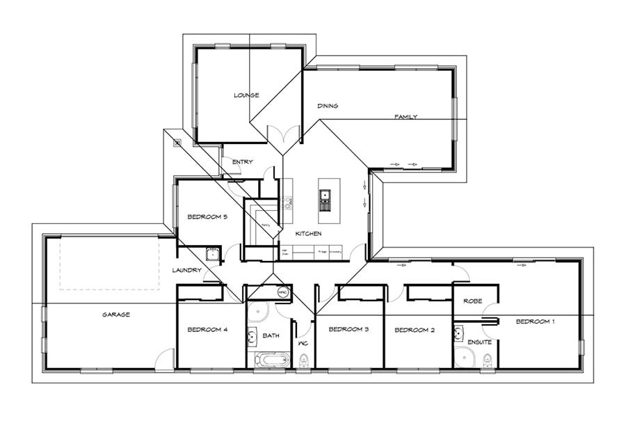
The Harwood

With the kitchen, family and dining areas are all open-plan and flow nicely out to the entertaining area. This house lets in an abundance of natural light.

  • 2x Living areas
  • 2x bathrooms
  • Butler’s pantry
  • Double garage
  • Lots of storage
5
2
231 sqm

Floor Plan

Floor Area

  • 193sqm
  • 38sqm
  • 231sqm
  • 241sqm

Room Size

  • 4.8m x 4.8m
  • 6.8m x 4.5m
  • 5.9m x 3.6m
  • 3.1m x 3.1m
  • 3.1m x 3.1m
  • 3.1m x 3.1m
  • 3.1m x 3.1m
  • 6.0m x 6.0m
  • 24.9m x 15.0m