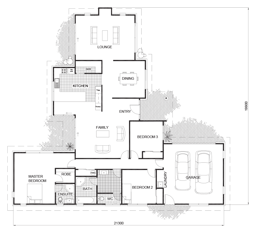
This 240sqm classic style design is a low maintenance family home. Key highlights of this plan include the popular three-way bathroom, large pantry, and separate lounge for entertaining.
This was my first home and my first build and naturally, I was nervous. I understand there are delays during this climate; people just want their homes done, and inflation has thrown a spanner in. This can be an incredibly stressful experience and considering the building industry strains, I had a wonderful experience. Select Homes identified all the needed requirements for the build without raising the initial quoted price. This honestly was a great experience.
We build throughout the Waikato area including Hamilton, Cambridge, Morrinsville, Matamata, Te Awamutu and Te Kauwhata.