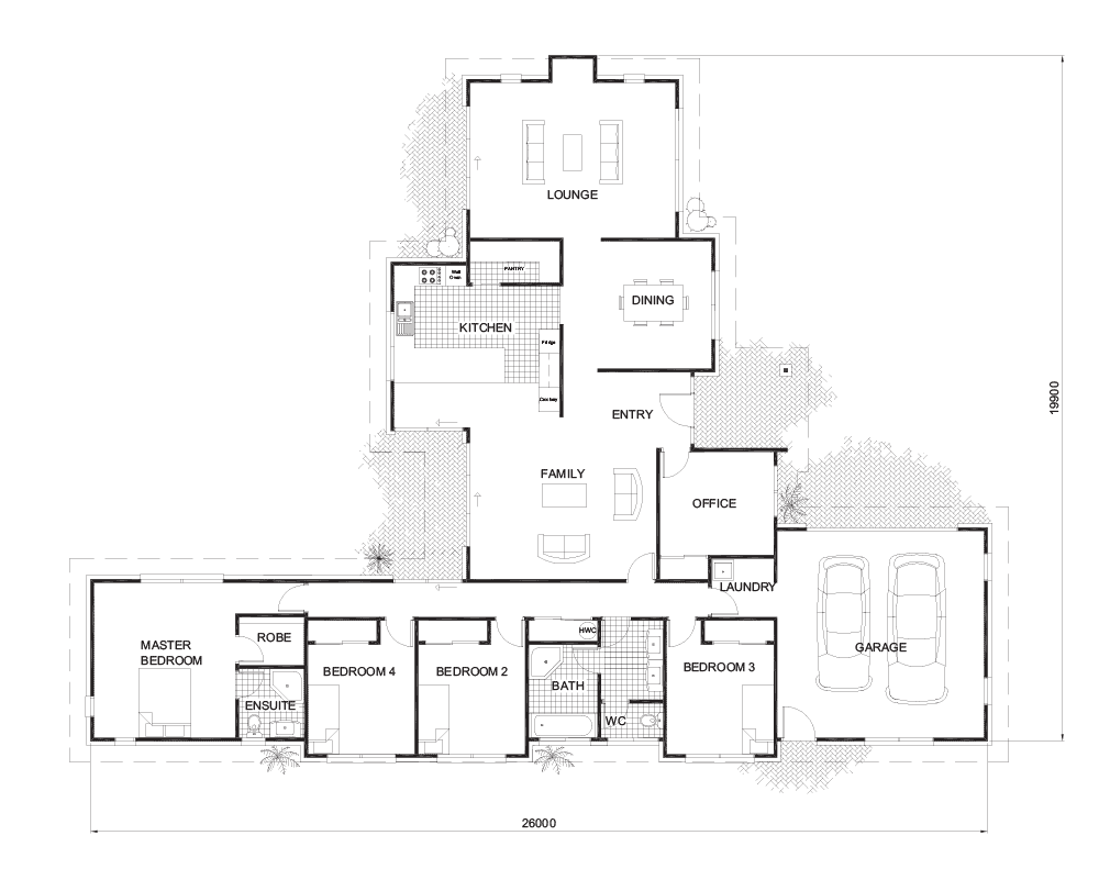
There is no mystery about this design, it is a beautifully designed four bedroom home that includes something for all the family. Designed to suit a range of lifestyles, this plan features a very spacious kitchen that unfolds out to the family and outdoor area, while the large dining area can cater for many guests.
This was my first home and my first build and naturally, I was nervous. I understand there are delays during this climate; people just want their homes done, and inflation has thrown a spanner in. This can be an incredibly stressful experience and considering the building industry strains, I had a wonderful experience. Select Homes identified all the needed requirements for the build without raising the initial quoted price. This honestly was a great experience.
We build throughout the Waikato area including Hamilton, Cambridge, Morrinsville, Matamata, Te Awamutu and Te Kauwhata.