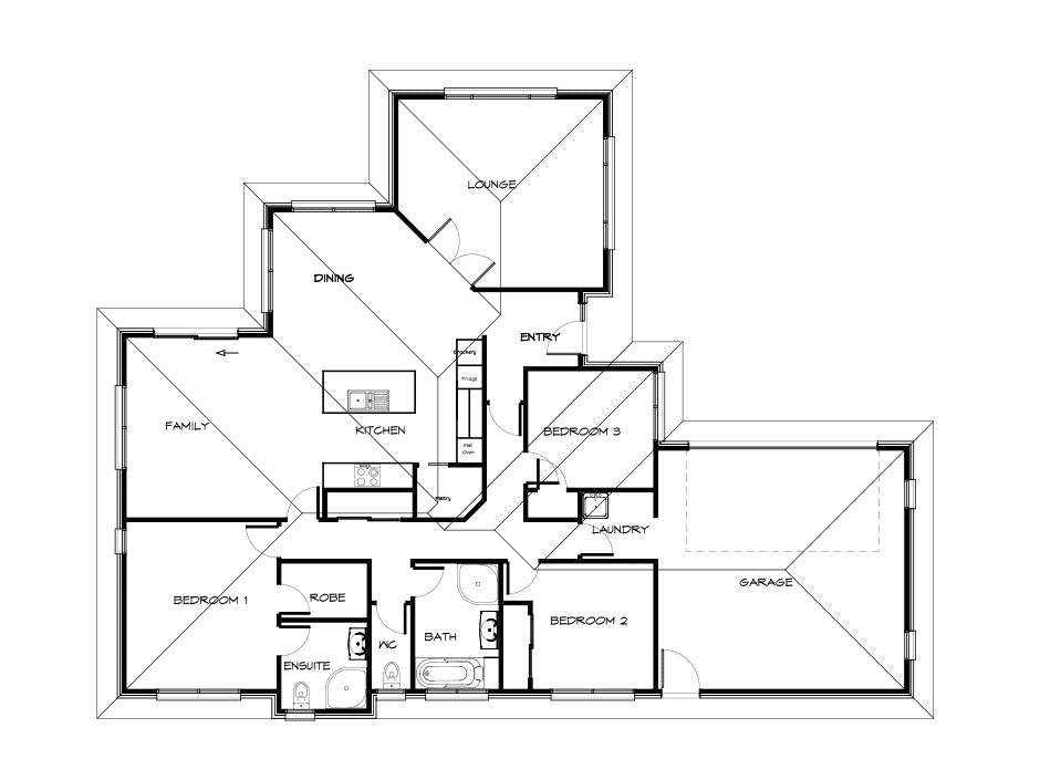
The Paris

Taking one of our most popular designs but slimming the floor space down to give it some of its own features. This affordable house is perfect for a growing family.

  • 2x Living areas
  • 2x bathrooms
  • Butler’s pantry
  • Double garage
3
2
183 sqm

Floor Plan

Floor Area

  • 148sqm
  • 35sqm
  • 183sqm
  • 191sqm

Room Size

  • 4.9m x 4.5m
  • 4.7m x 4.3m
  • 3.8m x 3.0m
  • 4.0m x 3.6m
  • 3.0m x 2.9m
  • 3.0m x 2.8m
  • 5.9m x 5.7m
  • 18.8m x 14.8m